首頁 > 買屋 > 桃園市 > 中壢區 > 華勛街 > 華勛大地坪透天(JA44153758)列印│轉寄│加入追蹤│追蹤清單
售 桃園市中壢區 華勛大地坪透天 案件編號:JA44153758
案件簡介
基本資料
| 地址 | 桃園市中壢區 華勛街 | ||
| 總價 | 1,500 萬 | ||
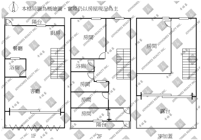
| 格局 | 4 房 / 2 廳 / 2 衛 / 0 室 | 加蓋格局 | 1 房 / 0 廳 / 0 衛 / 0 室 |
| 用途 | 住家用 | 屋齡 | 47. 年 |
| 門前道路寬 | 約 4 米 | 車位 | 無 |
| 每層戶數 | 出售樓層 / 總樓層 | 1~2 / 2 | |
| 類型 | 透天 / 別墅 | 朝向 | 南 |
| 月管理費 | 警衛管理 | 無 | |
| 建物結構 | 加強磚造 | 外牆建材 | 二丁掛 |
| 邊間 / 暗房 | 否 / 無 | ||
登記坪數
| 總坪數 | 24.65 坪 | 主建物 | 24.65 坪 | 附屬建物 | 0 坪 |
| 公共設施 | 0 坪 | 車位 | 0 坪 | 土地登記 | 27.34 坪 |













