首頁 > 買屋 > 桃園市 > 中壢區 > 正光街 > 近交流道大器寬店面(JA43162300)列印│轉寄│加入追蹤│追蹤清單
售 桃園市中壢區 近交流道大器寬店面 案件編號:JA43162300
案件簡介
基本資料
| 地址 | 桃園市中壢區 正光街 | ||
| 總價 | 3,398 萬 | ||
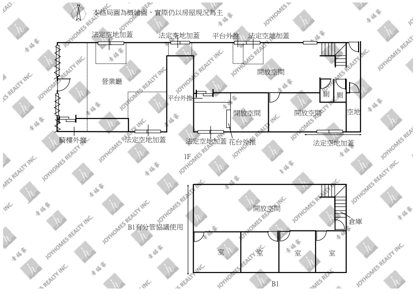
| 格局 | 0 房 / 4 廳 / 2 衛 / 4 室 | 加蓋格局 | 0 房 / 1 廳 / 2 衛 / 4 室 |
| 用途 | 住家用 | 屋齡 | 30. 年 |
| 門前道路寬 | 約 11 米 | 車位 | 無 |
| 每層戶數 | 出售樓層 / 總樓層 | 1 / 6 | |
| 類型 | 店面 | 朝向 | 西 |
| 月管理費 | 警衛管理 | 無 | |
| 建物結構 | 鋼筋混凝土造 | 外牆建材 | 二丁掛 |
| 邊間 / 暗房 | 否 / 無 | ||
登記坪數
| 總坪數 | 101.29 坪 | 主建物 | 48.82 坪 | 附屬建物 | 1.96 坪 |
| 公共設施 | 50.51 坪 | 車位 | 0 坪 | 土地登記 | 13.3 坪 |













