首頁 > 買屋 > 桃園市 > 平鎮區 > 育達路 > 育達路燙金透天(JA50152606)列印│轉寄│加入追蹤│追蹤清單
售
桃園市平鎮區 育達路燙金透天
案件編號:JA50152606
幸福家 - 中壢店
電話:(03)426-0777│傳真:(03)426-1191
地址:桃園市中壢區新生路283-1號
預約看屋
案件簡介
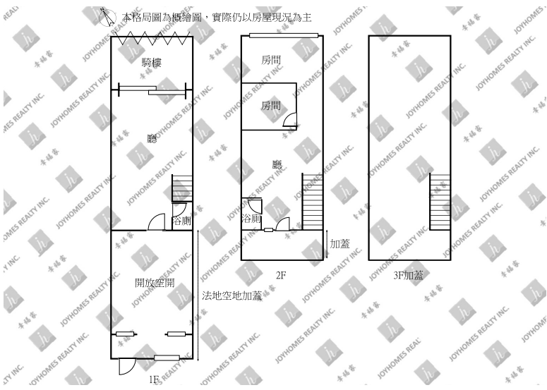
基本資料
| 地址 |
桃園市平鎮區 育達路 |
| 總價 |
2,088 萬 |
| 格局 |
2 房 / 2 廳 / 2 衛 / 0 室
|
加蓋格局 |
1 房 / 0 廳 / 0 衛 / 0 室
|
| 用途 |
住家用 |
屋齡 |
52. 年 |
| 門前道路寬 |
約 10 米 |
車位 |
無 |
| 每層戶數 |
|
出售樓層 / 總樓層 |
1~2 / 2 |
| 類型 |
透天 / 別墅 |
朝向 |
東北 |
| 月管理費 |
|
警衛管理 |
無 |
| 建物結構 |
加強磚造 |
外牆建材 |
方塊磚 |
| 邊間 / 暗房 |
否 / 無 |
登記坪數
| 總坪數 | 33.54 坪 |
主建物 | 33.54 坪 |
附屬建物 | 0 坪 |
| 公共設施 | 0 坪 |
車位 | 0 坪 |
土地登記 | 30.25 坪 |
店長推薦
-

桃園市中壢區90.88 坪 / 5 房
2,780
萬
-
-

桃園市中壢區16.72 坪 / 0 房
2,580
萬
-

桃園市中壢區10.02 坪 / 1 房
1,688
萬
-

桃園市楊梅區25.97 坪 / 4 房
1,587
萬