首頁 > 買屋 > 桃園市 > 桃園區 > 博愛路 > 桃園博愛路金店面(JA39234822)列印│轉寄│加入追蹤│追蹤清單
售
桃園市桃園區 桃園博愛路金店面
案件編號:JA39234822
幸福家 - 中壢店
電話:(03)426-0777│傳真:(03)426-1191
地址:桃園市中壢區新生路283-1號
預約看屋
案件簡介
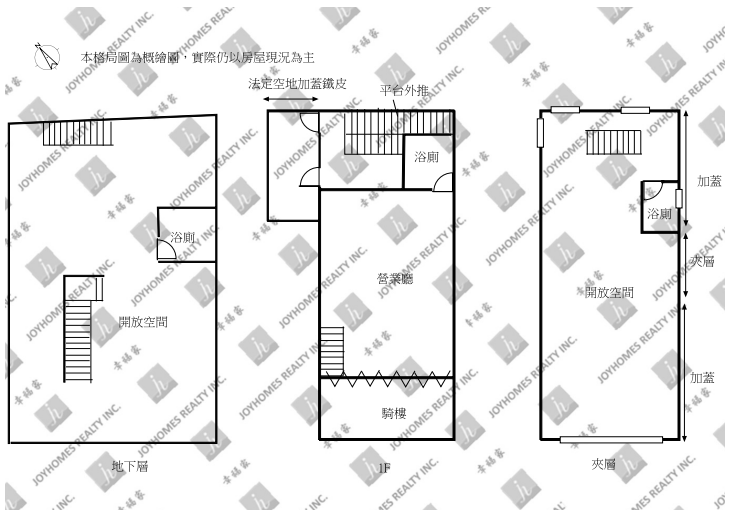
基本資料
| 地址 |
桃園市桃園區 博愛路 |
| 總價 |
2,580 萬 |
| 格局 |
0 房 / 3 廳 / 2 衛 / 0 室
|
加蓋格局 |
0 房 / 0 廳 / 1 衛 / 0 室
|
| 用途 |
店舖、住宅、人行道、避難室、停車空間 |
屋齡 |
38 年 |
| 門前道路寬 |
約 8 米 |
車位 |
無 |
| 每層戶數 |
|
出售樓層 / 總樓層 |
地下層~1 / 8 |
| 類型 |
店面 |
朝向 |
西南 |
| 月管理費 |
|
警衛管理 |
無 |
| 建物結構 |
鋼筋混凝土造 |
外牆建材 |
二丁掛 |
| 邊間 / 暗房 |
否 / 有 |
登記坪數
| 總坪數 | 96.77 坪 |
主建物 | 86.63 坪 |
附屬建物 | 5.17 坪 |
| 公共設施 | 4.97 坪 |
車位 | 0 坪 |
土地登記 | 5.31 坪 |
店長推薦
-

桃園市中壢區15.07 坪 / 0 房
2,980
萬
-

桃園市中壢區47.59 坪 / 3 房
1,358
萬
-

桃園市中壢區50.69 坪 / 2 房
2,980
萬
-

桃園市中壢區50.38 坪 / 3 房
1,530
萬
-