首頁 > 買屋 > 桃園市 > 中壢區 > 南園二路 > 近A21重劃區金透店(JA35165339)列印│轉寄│加入追蹤│追蹤清單
售
桃園市中壢區 近A21重劃區金透店
案件編號:JA35165339
幸福家 - 中壢店
電話:(03)426-0777│傳真:(03)426-1191
地址:桃園市中壢區新生路283-1號
預約看屋
案件簡介
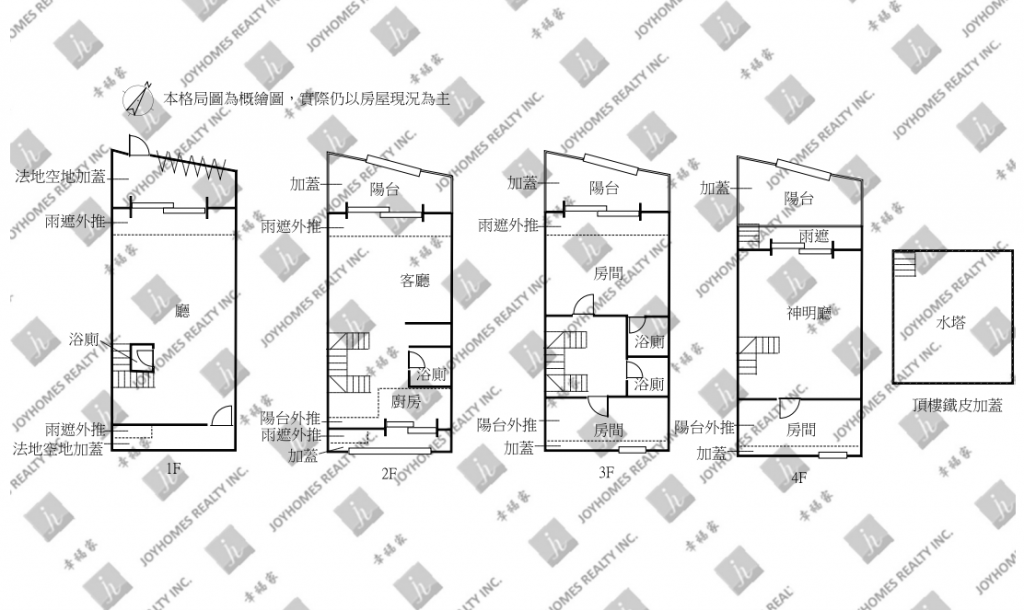
基本資料
| 地址 |
桃園市中壢區 南園二路 |
| 總價 |
3,888 萬 |
| 格局 |
3 房 / 3 廳 / 4 衛 / 0 室
|
加蓋格局 |
0 房 / 0 廳 / 0 衛 / 0 室
|
| 用途 |
停車空間、店舖、住宅 |
屋齡 |
19. 年 |
| 門前道路寬 |
約 20 米 |
車位 |
無 |
| 每層戶數 |
|
出售樓層 / 總樓層 |
1~4 / 4 |
| 類型 |
店面 |
朝向 |
北 |
| 月管理費 |
|
警衛管理 |
無 |
| 建物結構 |
鋼筋混凝土造 |
外牆建材 |
二丁掛 |
| 邊間 / 暗房 |
否 / 無 |
登記坪數
| 總坪數 | 49.48 坪 |
主建物 | 36.28 坪 |
附屬建物 | 13.2 坪 |
| 公共設施 | 0 坪 |
車位 | 0 坪 |
土地登記 | 22.39 坪 |
店長推薦
-

桃園市楊梅區25.97 坪 / 4 房
1,587
萬
-

桃園市中壢區31.64 坪 / 1 房
4,580
萬
-
-

桃園市中壢區51.11 坪 / 0 房
4,380
萬
-

桃園市中壢區47.59 坪 / 3 房
1,358
萬