首頁 > 買屋 > 桃園市 > 中壢區 > 新生路 > 新生路金透店(2A37140240)列印│轉寄│加入追蹤│追蹤清單
售
桃園市中壢區 新生路金透店
案件編號:2A37140240
幸福家 - 中壢店
電話:(03)426-0777│傳真:(03)426-1191
地址:桃園市中壢區新生路283-1號
預約看屋
案件簡介
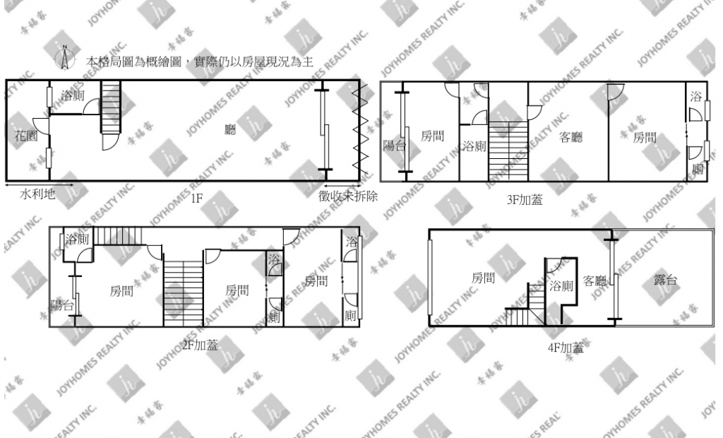
基本資料
| 地址 |
桃園市中壢區 新生路 |
| 總價 |
2,980 萬 |
| 格局 |
0 房 / 1 廳 / 1 衛 / 0 室
|
加蓋格局 |
6 房 / 2 廳 / 7 衛 / 0 室
|
| 用途 |
住家用 |
屋齡 |
55. 年 |
| 門前道路寬 |
約 20 米 |
車位 |
無 |
| 每層戶數 |
|
出售樓層 / 總樓層 |
1 / 1 |
| 類型 |
店面 |
朝向 |
東 |
| 月管理費 |
0 元 |
警衛管理 |
無 |
| 建物結構 |
加強磚造 |
外牆建材 |
二丁掛 |
| 邊間 / 暗房 |
否 / 無 |
登記坪數
| 總坪數 | 15.07 坪 |
主建物 | 15.07 坪 |
附屬建物 | 0 坪 |
| 公共設施 | 0 坪 |
車位 | 0 坪 |
土地登記 | 22.69 坪 |
店長推薦
-

桃園市中壢區50.38 坪 / 3 房
1,530
萬
-
-

桃園市中壢區388.64 坪 / 1 房
8,800
萬
-

桃園市中壢區87.07 坪 / 4 房
2,488
萬
-

桃園市中壢區18.34 坪 / 5 房
1,288
萬